GENERALSANIERUNG DER GRUND- UND MITTELSCHULE
AM EICHENWALD, NEUSÄSS





BGF ca. 8.095 m2, Baukosten ca. 8,4 Mio Euro
- Bauantrag
- Werk-und Detailplanung
- Ausschreibungen und Vergaben
- Bauleitung-, überwachung und Abrechnung
- Leistungsphasen 4 – 8
für Schuller + Tham Architekten BDA, Augsburg
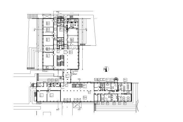
Nach 45 Jahren entsprechen Haustechnik, Wärmeschutz, Energieverbrauch und Brandschutz nicht mehr aktuellen Anforderungen. Zudem hat sich auch das Standardraumprogramm und das Nutzungsprofil deutlich verändert. Die Barrierefreiheit im Gebäude muß hergestellt werden.
So wird der momentan als Mittagsbetreuung genutzte Verbindungsbau zwischen Grund- und Mittelschule für kürzere Wege wieder als Verkehrsfläche genutzt und mit einem Aufzug für die barrierefreie Erschließung der vier Geschosse versehen.
WC-Anlagen werden erneuert und zusammengefaßt, um den aktuellen Flächenüberhang zu reduzieren und die Flächen für Lehrmittelräume nutzen zu können. Im Erdgeschoß wird eine Mensaküche mit Speisesaal eingerichtet. Räume werden verlagert, um Flächenüberhänge zu reduzieren und im Raumprogramm geforderte zusätzliche Räume zu schaffen. Ein neues Brand-schutzkonzept wurde erarbeitet und wird nun umgesetzt. Im Zuge einer energetischen Sanierung wird die gesamte Hülle erneuert, eine geregelte Lüftungsanlage für WCs und verschiedene Klassen errichtet, eine Pelletsheizungsanlage eingebaut und die gesamte Beleuchtung in LED-Technik ausgeführt. Im Zuge des Bauunterhalts werden WCs saniert, sämtliche Decken, Türen und Bodenbeläge erneuert. Die ELT Installationen mit EDV-Vernetzung und die Sanitärinstallationen werden ebenfalls erneuert. Bei den Außenanlagen werden alle vorhandenen Lichtgräben und der Pausenhof erneuert.
